Home » Online Diagram » 第7页
简介 该C4模型由西蒙·布朗开发的C4模型提供了一种结构化的软件架构图示方法,包含四个不同的层级,逐步深入探讨软件系统的架构。每个层级都提供独特的视角,并在记录和沟通软件架构方面发挥特定…
continue reading →
引言 在业务流程建模与分析领域,事件驱动流程链图(即EPC图)是描述和优化工作流程的宝贵工具。该图由萨尔兰的谢尔教授及其同事于1992年开发,此后已在多个行业中得到广泛应用,为捕捉和可视…
continue reading →
引言 在软件开发和系统分析领域,创建成功应用程序的关键步骤之一是识别和建模用例。用例本质上是系统或应用程序对特定用户请求的响应行为的描述。这些用例为设计和开发能够高效满足用户需求的系统提…
continue reading →
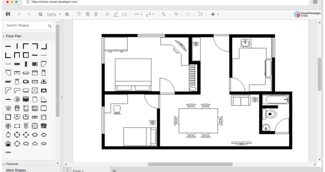
简介 设计平面图是任何建筑或翻新项目的重要组成部分,无论是小型浴室改造还是大型办公空间设计。平面图的精确性和清晰度对项目成功实施具有重大影响。现在请使用 Visual Paradigm …
continue reading →
引言 在数据分析与可视化领域,散点图是揭示变量之间关系的宝贵工具。在本例中,我们生成了一个散点图,用于探索一组11年级学生臂长与身高之间的有趣关联。这一由八个独立数据点组成的可视化数据表…
continue reading →
引言 理解软件开发中的系统上下文图:一份全面指南 在复杂的软件开发世界中,有效的沟通至关重要。如果对系统的范围及其与外部实体的关系缺乏清晰理解,就会导致混乱,进而引发误解、延误和高昂的错…
continue reading →
简介 在协作工作领域,高效沟通至关重要。Visual Paradigm Online(VP Online)作为一种强大的助力应运而生,通过其强大的编辑器和集中式工作区简化了绘图过程。无论…
continue reading →
引言 在当今快节奏的世界里,信息过载已成为常态,视觉沟通的重要性比以往任何时候都更为突出。信息图结合了文字与视觉元素,已成为以简洁且引人入胜的方式传达复杂信息的强大工具。无论你是想展示数…
continue reading →
引言 在快节奏的数字时代,信息的消耗速度前所未有。为了吸引注意力并高效传达复杂概念,视觉沟通至关重要。Visual Paradigm Online,一款前沿的绘图与设计工具,通过海量…
continue reading →
引言: 在数字通信的动态世界中,视觉内容已成为有效传达信息的不可或缺的工具。图形设计和信息图在以视觉上吸引人的方式呈现复杂数据和理念方面起着关键作用。然而,对于没有设计背景的人来说,创建…
continue reading →