Mengungkap Kekuatan Use Case: Dari Identifikasi hingga Pemodelan

Mengungkap Kekuatan Use Case: Dari Identifikasi hingga Pemodelan

Pendahuluan Di dunia pengembangan perangkat lunak dan analisis sistem, salah satu langkah kunci dalam menciptakan aplikasi yang sukses adalah identifikasi dan pemodelan use case. Use case pada dasarnya merupakan deskripsi tentang bagaimana sistem atau aplikasi bereaksi terhadap permintaan pengguna tertentu. Use case ini berfungsi sebagai gambaran rancangan untuk merancang dan mengembangkan sistem yang secara efisien memenuhi kebutuhan pengguna. Dalam artikel ini, kita akan membahas proses identifikasi use case, mengembangkannya menggunakan template, dan memodelkannya melalui diagram urutan. Mengidentifikasi Use Case Kandidat Sebelum memasuki proses pengembangan dan pemodelan use case, sangat penting untuk mengidentifikasi use…continue reading →
Visual Paradigm Online: Tujuan Utama Anda untuk Desain Denah Lantai yang Mudah

Visual Paradigm Online: Tujuan Utama Anda untuk Desain Denah Lantai yang Mudah

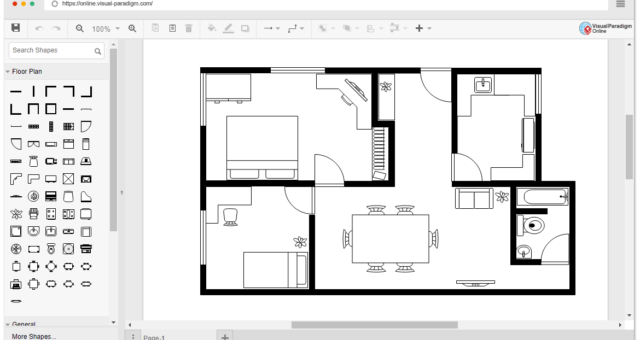
Pendahuluan Mendesain denah lantai merupakan bagian penting dari setiap proyek konstruksi atau renovasi, baik itu renovasi kamar mandi kecil maupun desain kantor skala besar. Presisi dan kejelasan denah lantai Anda dapat memberikan perbedaan signifikan dalam pelaksanaan proyek yang sukses. Masuklah Visual Paradigm Online, platform pilihan untuk alat desain denah lantai online yang mudah digunakan. Dengan berbagai fitur yang dirancang untuk pemula maupun profesional, Visual Paradigm Online adalah solusi satu atap untuk membuat denah lantai berkualitas tinggi dengan cepat dan tanpa kesulitan. Membuat Denah Lantai yang Menakjubkan Menjadi Mudah Visual Paradigm Online menyederhanakan proses…continue reading →
Tutorial Grafik Sebaran: Panduan Cepat

Tutorial Grafik Sebaran: Panduan Cepat

Pendahuluan Di dunia analisis dan visualisasi data, grafik sebaran berfungsi sebagai alat yang sangat berharga untuk mengungkap hubungan antar variabel. Dalam kasus khusus ini, kami telah membuat grafik sebaran yang meneliti hubungan menarik antara panjang lengan dan tinggi badan di antara sekelompok siswa kelas 11. Representasi visual data ini, yang terdiri dari delapan titik data individu, memungkinkan kita untuk memahami dinamika antara dua atribut tersebut. Dengan mempelajari pola dalam grafik sebaran, kita dapat mulai membuat prediksi mengenai panjang lengan berdasarkan tinggi badan dan sebaliknya. Analisis ini tidak hanya memberikan wawasan tentang karakteristik fisik…continue reading →
Memahami Diagram Konteks Sistem dalam Pengembangan Perangkat Lunak: Panduan Lengkap

Memahami Diagram Konteks Sistem dalam Pengembangan Perangkat Lunak: Panduan Lengkap

Pendahuluan Memahami Diagram Konteks Sistem dalam Pengembangan Perangkat Lunak: Panduan Lengkap Di dunia yang kompleks dari pengembangan perangkat lunak, komunikasi yang efektif adalah kunci. Tanpa pemahaman yang jelas mengenai cakupan sistem dan hubungannya dengan entitas eksternal, kekacauan dapat terjadi, mengakibatkan salah paham, keterlambatan, dan kesalahan yang mahal. Di sinilah Diagram Konteks Sistem (SCD) berperan. SCD berfungsi sebagai alat dasar untuk memvisualisasikan batas dan interaksi dari sistem perangkat lunak, membantu tim berkomunikasi secara efektif dan memastikan semua pihak berada pada satu kesepakatan. Apa itu Diagram Konteks Sistem? Diagram Konteks Sistem adalah representasi tingkat tinggi…continue reading →
Visual Paradigm Online: Menggambar Diagram Lebih Baik, Lebih Cepat, Bersama

Visual Paradigm Online: Menggambar Diagram Lebih Baik, Lebih Cepat, Bersama

Pendahuluan Di dunia kerja kolaboratif, komunikasi yang efisien sangat penting.Visual Paradigm Online (VP Online) muncul sebagai sekutu yang kuat, menyederhanakan pembuatan diagram melalui editor yang kuat dan ruang kerja terpusat. Baik Anda seorang pengembang web, eksekutif pemasaran, atau analis bisnis, VP Online menawarkan platform yang serbaguna untuk membuat diagram profesional dengan mudah dan mendukung kolaborasi yang mulus. Mulai Gratis, Tingkatkan Produktivitas VP Online mengundang Anda dengan antarmuka yang ramah pengguna dan akses gratis untuk penggunaan non-laba. Dengan biaya hanya $9 per pengguna per bulan, pengguna komersial mendapatkan akses ke berbagai alat pembuatan diagram…continue reading →
Melepaskan Kekuatan Infografik: Buat Desain yang Lebih Baik dengan Mudah

Melepaskan Kekuatan Infografik: Buat Desain yang Lebih Baik dengan Mudah

Pendahuluan Di dunia yang serba cepat saat ini, di mana kelebihan informasi sudah menjadi hal biasa, komunikasi visual telah menjadi lebih penting dari sebelumnya. Infografik, yang menggabungkan teks dan visual, muncul sebagai alat yang kuat untuk menyampaikan informasi kompleks secara ringkas dan menarik. Baik Anda ingin mengilustrasikan data, menjelaskan proses, atau sekadar menarik perhatian, infografik bisa menjadi senjata rahasia Anda. Dengan alat dan teknik yang tepat, membuat infografik yang menakjubkan tidak hanya diperuntukkan bagi desainer grafis—ini bisa dicapai oleh siapa saja. Pentingnya Infografik Infografik berfungsi sebagai alat komunikasi yang serbaguna, mampu mengubah data…continue reading →
Melepaskan Kreativitas dengan Visual Paradigm Online: Mulai Kreativitas Infografis yang Sangat Dipersonalisasi

Melepaskan Kreativitas dengan Visual Paradigm Online: Mulai Kreativitas Infografis yang Sangat Dipersonalisasi

  Pendahuluan Di era digital yang cepat, informasi dikonsumsi pada tingkat yang belum pernah terjadi sebelumnya. Untuk menarik perhatian dan menyampaikan konsep-konsep kompleks secara efisien, komunikasi visual adalah kunci.Visual Paradigm Online, alat diagram dan desain mutakhir, memberdayakan pengguna untuk memulai kreativitas mereka melalui berbagai koleksi templat. Dalam artikel ini, kami menjelajahi cara memanfaatkan alat ini untuk menciptakan infografis yang sangat dipersonalisasi dan berdampak besarinfografis. Bagian 1: Memulai dengan Visual Paradigm Online 1.1 Pendaftaran dan Antarmuka Mulailah perjalanan kreatif Anda dengan mendaftar di Visual Paradigm Online. Antarmuka yang intuitif menyambut pengguna dengan dasbor yang…continue reading →
Menyederhanakan Desain Grafis dan Pembuatan Infografis dengan Templat Profesional Visual Paradigm

Menyederhanakan Desain Grafis dan Pembuatan Infografis dengan Templat Profesional Visual Paradigm

Pendahuluan: Di dunia komunikasi digital yang dinamis, konten visual telah menjadi alat yang tak terpisahkan untuk menyampaikan informasi secara efektif. Desain grafis dan infografis memainkan peran penting dalam menyajikan data dan ide yang kompleks secara menarik secara visual. Namun, proses membuat visual yang menarik bisa memakan waktu dan sulit bagi mereka yang tidak memiliki latar belakang desain. Untungnya, alat sepertipembuat grafis Visual Paradigmmemberikan solusi dengan menawarkan templat profesional dan fitur yang ramah pengguna untuk menyederhanakan proses desain. Mengungkap KekuatanTemplat Profesional: 1. Efisiensi Waktu: Salah satu keunggulan paling signifikan dari menggunakan pembuat grafis Visual…continue reading →
Melepaskan Kreativitas dan Kolaborasi dengan Alat Diagram Online Visual Paradigm

Melepaskan Kreativitas dan Kolaborasi dengan Alat Diagram Online Visual Paradigm

Pendahuluan Di dunia kerja kolaboratif yang serba cepat, kebutuhan akan alat diagram online yang efisien dan serbaguna tidak pernah lebih penting. Visual Paradigm Online muncul sebagai solusi kuat, mengubah wajah pembuatan diagram dengan platform kolaboratif berbasis cloud. Mari kita telusuri fitur dan keunggulan yang membedakan Visual Paradigm Online di ranah diagram online. Mulai Kapan Saja, Di Mana Saja Visual Paradigm Online memungkinkan Anda menggambar diagram dengan mudah, menghilangkan batasan waktu dan lokasi. Baik Anda di kantor, di rumah, atau sedang dalam perjalanan, sifat berbasis cloud dari alat ini memastikan tim Anda dapat bekerja…continue reading →
Membuka Produktivitas dengan Suite Produktivitas Online Visual Paradigm

Membuka Produktivitas dengan Suite Produktivitas Online Visual Paradigm

Pendahuluan Di era digital yang serba cepat, produktivitas adalah kunci keberhasilan.Suite Produktivitas Online Visual Paradigmmuncul sebagai perubahan besar, menawarkan serangkaian alat komprehensif untuk menyederhanakan pekerjaan Anda dan meningkatkan efisiensi. Mari kita telusuri fitur-fitur yang menjadikan suite ini sebagai kekuatan utama bagi individu, bisnis, dan lembaga pendidikan. Suite Kantor All-in-One Visual Paradigm menyediakan suite kantor online all-in-one yang terintegrasi secara mulus ke dalam alur kerja Anda. Mulai dari demo instan hingga pengeditan dokumen, pembuatan presentasi, pengeditan spreadsheet, bahkan pemutar PDF, suite ini mencakup setiap aspek kebutuhan kantor Anda. Ini menghilangkan kesulitan beralih antar perangkat…continue reading →