Home » Online Diagram » 第 7 頁
引言 在業務流程建模與分析領域中,事件驅動流程鏈圖表(簡稱EPC圖表)是描述與優化工作流程的寶貴工具。該圖表由薩爾蘭的謝爾教授及其同事於1992年開發,自此已在各個產業中廣泛應用,提供了...
continue reading →
引言 在軟體開發與系統分析領域中,創造成功應用程式的一個關鍵步驟,就是識別與建模用例。用例本質上是系統或應用程式對特定使用者請求之回應行為的描述。這些用例可作為設計與開發符合使用者需求之...
continue reading →
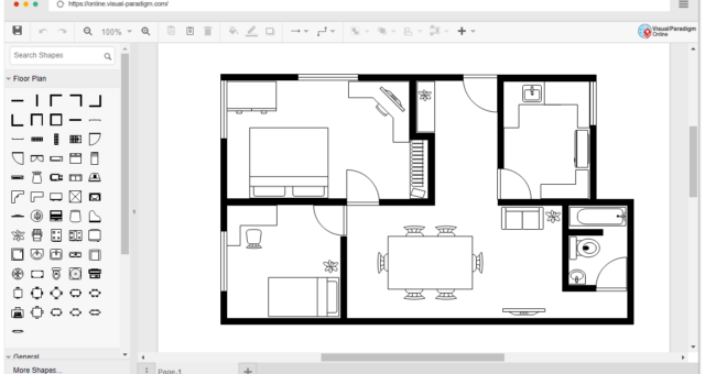
簡介 設計平面圖是任何建築或翻新項目中不可或缺的一環,無論是小型浴室改造還是大型辦公室設計。您的平面圖的精確度與清晰度將對項目成功執行產生重大影響。現在請使用 Visual Paradi...
continue reading →
引言 在數據分析與可視化的領域中,散點圖是揭示變量之間關係的無價工具。在本案例中,我們生成了一個散點圖,用以探討一組十年級學生中手臂長度與身高之間的有趣關聯。這個由八個獨立數據點組成的數...
continue reading →
引言 理解軟體開發中的系統上下文圖:一份全面指南 在複雜的軟體開發世界中,有效的溝通至關重要。若未能清楚理解系統的範圍及其與外部實體的關係,就會導致混亂,進而引發誤解、延誤和高昂的錯誤。...
continue reading →
簡介 在協作工作領域中,高效溝通至關重要。Visual Paradigm Online(VP Online)作為強大的助力應運而生,透過其強大的編輯器與集中式工作空間簡化圖表繪製。無論您...
continue reading →
引言 在當今快速變化的世界中,資訊過載已成為常態,視覺溝通的重要性前所未有。資訊圖表結合文字與視覺元素,已成為以簡潔且引人入勝的方式傳達複雜資訊的強大工具。無論您是想呈現數據、解釋流程,...
continue reading →
引言 在快速變化的數位時代,資訊的消耗速度達到前所未有的水平。要吸引注意力並有效傳達複雜概念,視覺溝通至關重要。Visual Paradigm Online,一款尖端的圖示繪製與設計...
continue reading →
簡介: 在數位傳播的動態世界中,視覺內容已成為有效傳達資訊不可或缺的工具。圖形設計與資訊圖表在以具吸引力的視覺方式呈現複雜資料與概念方面扮演著關鍵角色。然而,對於沒有設計背景的人而言,創...
continue reading →
簡介 在快節奏的協作工作環境中,對高效且多功能的在線繪圖工具的需求從未如此迫切。Visual Paradigm Online 作為一個強大的解決方案應運而生,以其基於雲端的協作平台重新定...
continue reading →