Guide complet sur leenton AIDA

Guide complet sur leenton AIDA

Introduction Le modèle AIDA est un cadre fondamental en marketing et publicité qui aide les entreprises à guider les clients à travers les différentes étapes de leur parcours d'achat. AIDA signifie Connaissance, Intérêt, Désir et Action, qui représentent les étapes clés que suit un client potentiel avant de prendre une décision d'achat. Le but principal du modèle AIDA est d'aider les marketeurs à concevoir des stratégies de communication marketing efficaces ciblant chacune de ces étapes, conduisant finalement à des conversions et à une fidélité client. Concepts clés et éléments du modèle AIDA 1.…suite... →
Guide complet sur le modèle de changement en 8 étapes de Kotter

Guide complet sur le modèle de changement en 8 étapes de Kotter

Introduction Le modèle de changement en 8 étapes de Kotter est un cadre largement reconnu pour gérer efficacement et mettre en œuvre le changement organisationnel. Développé par le Dr John Kotter, professeur à Harvard Business School et expert reconnu en matière de leadership et de changement, ce modèle propose une approche structurée pour guider les organisations à travers le processus complexe du changement. Ce guide complet explorera le but, les concepts clés et les éléments du modèle de changement en 8 étapes de Kotter, accompagnés d'exemples du monde réel pour illustrer son application.…suite... →
Guide complet sur la roue de l’essence de marque

Guide complet sur la roue de l’essence de marque

Introduction Dans le monde du marketing et de la marque, créer une identité de marque forte et durable est essentiel pour réussir. La roue de l'essence de marque est un outil puissant qui aide les organisations à définir et à communiquer efficacement leur essence de marque. Ce guide complet vous guidera à travers le but, les concepts clés et les éléments de la roue de l'essence de marque, et vous fournira des exemples utilisant des modèles prêts à l'emploi disponibles dans Visual Paradigm Online. 1. Introduction Qu'est-ce que la roue de l'essence de…suite... →
Débloquer la créativité : Découvrez les fonctionnalités de l’éditeur de conception visuelle de Visual Paradigm

Débloquer la créativité : Découvrez les fonctionnalités de l’éditeur de conception visuelle de Visual Paradigm

Introduction La conception visuelle est une composante essentielle de nombreux projets créatifs, et disposer des bons outils pour donner vie à vos idées est indispensable.L'éditeur de conception visuelle de Visual Paradigm est un tel outil qui permet aux utilisateurs de créer des designs impressionnants avec facilité et efficacité. Que vous soyez un graphiste professionnel ou quelqu’un cherchant à améliorer son contenu visuel, Visual Paradigm propose une gamme de fonctionnalités qui peuvent vous aider à atteindre vos objectifs de conception sans effort. Examinons quelques-unes des fonctionnalités clés de l'éditeur de conception visuelle de Visual…suite... →
Introduction au modèle C4 : un guide rapide

Introduction au modèle C4 : un guide rapide

Introduction Le modèle C4, développé par Simon Brown, propose une approche structurée pour la représentation des architectures logicielles, composée de quatre niveaux distincts qui zooment progressivement sur l'architecture d'un système logiciel. Chaque niveau offre une perspective unique et remplit des objectifs spécifiques dans la documentation et la communication de l'architecture logicielle. Examinons les quatre niveaux du modèle C4 : 1. Diagramme de contexte du système Portée : Un seul système logiciel. Éléments principaux : Le système logiciel en cours d'étude. Éléments d'appui : Les personnes (par exemple, utilisateurs, acteurs, rôles, personnages) et les…suite... →
Comprendre les diagrammes de chaîne de processus déclenchés par événement (EPC) : un guide complet

Comprendre les diagrammes de chaîne de processus déclenchés par événement (EPC) : un guide complet

Introduction Dans le domaine de la modélisation et de l'analyse des processus métier, les diagrammes de chaîne de processus déclenchés par événement, ou diagrammes EPC, constituent des outils précieux pour décrire et optimiser les flux de travail. Développés par le professeur Scheer et ses collègues en 1992 à Saarland, ces diagrammes ont depuis trouvé une utilisation répandue dans divers secteurs, offrant une approche structurée pour capturer et visualiser des processus complexes. Les fondamentaux des diagrammes EPC Au cœur de tout, les diagrammes EPC sont des représentations graphiques des processus métiers. Leur objectif principal…suite... →
Révéler la puissance des cas d’utilisation : de l’identification à la modélisation

Révéler la puissance des cas d’utilisation : de l’identification à la modélisation

Introduction Dans le domaine du développement logiciel et de l'analyse des systèmes, l'une des étapes clés pour créer des applications réussies est l'identification et la modélisation des cas d'utilisation. Un cas d'utilisation est essentiellement une description du comportement d'un système ou d'une application en réponse à une requête spécifique de l'utilisateur. Ces cas d'utilisation servent de plan directeur pour concevoir et développer des systèmes qui répondent efficacement aux besoins des utilisateurs. Dans cet article, nous explorerons le processus d'identification des cas d'utilisation, leur élaboration à l'aide de modèles, et leur modélisation à l'aide…suite... →
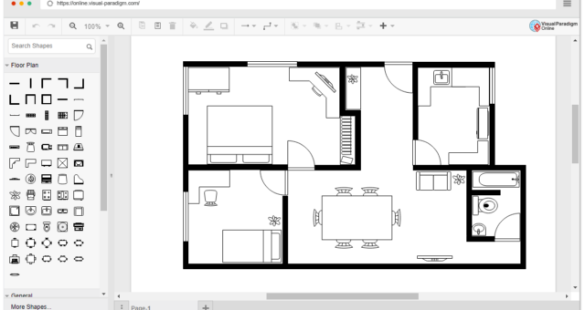
Visual Paradigm Online : Votre destination ultime pour concevoir des plans d’étage sans effort

Visual Paradigm Online : Votre destination ultime pour concevoir des plans d’étage sans effort

Introduction Concevoir un plan d'étage fait partie intégrante de tout projet de construction ou de rénovation, qu'il s'agisse d'une petite rénovation de salle de bains ou d'un vaste aménagement de bureau. La précision et la clarté de votre plan d'étage peuvent faire une grande différence dans la réussite de votre projet. Entrez dans Visual Paradigm Online, la plateforme de référence pour un outil en ligne de conception de plans d'étage facile à utiliser. Grâce à une gamme de fonctionnalités adaptées aussi bien aux débutants qu'aux professionnels, Visual Paradigm Online est votre solution tout-en-un…suite... →
Un tutoriel sur les diagrammes de dispersion : un guide rapide

Un tutoriel sur les diagrammes de dispersion : un guide rapide

Introduction Dans le domaine de l'analyse et de la visualisation des données, les diagrammes de dispersion constituent des outils inestimables pour découvrir les relations entre les variables. Dans notre cas particulier, nous avons créé un diagramme de dispersion qui explore la relation fascinante entre la longueur du bras et la taille chez un groupe d'élèves de première année secondaire. Cette représentation visuelle des données, composée de huit points de données individuels, nous permet d'explorer les dynamiques entre ces deux caractéristiques. En étudiant les motifs présents dans le diagramme de dispersion, nous pouvons commencer…suite... →
Comprendre les diagrammes de contexte du système dans le développement logiciel : un guide complet

Comprendre les diagrammes de contexte du système dans le développement logiciel : un guide complet

Introduction Comprendre les diagrammes de contexte du système dans le développement logiciel : un guide complet Dans le monde complexe du développement logiciel, la communication efficace est essentielle. Sans une compréhension claire de la portée du système et de ses relations avec les entités externes, le chaos peut s'installer, entraînant des malentendus, des retards et des erreurs coûteuses. C'est là que les diagrammes de contexte du système (SCD) entrent en jeu. Les SCD servent d'outil fondamental pour visualiser les limites et les interactions d'un système logiciel, aidant les équipes à communiquer efficacement et…suite... →