Odkrywanie mocy przypadków użycia: od identyfikacji do modelowania

Odkrywanie mocy przypadków użycia: od identyfikacji do modelowania

Wprowadzenie W dziedzinie rozwoju oprogramowania i analizy systemów jednym z kluczowych kroków w tworzeniu skutecznych aplikacji jest identyfikacja i modelowanie przypadków użycia. Przypadek użycia to zasadniczo opis działania systemu lub aplikacji w odpowiedzi na konkretny żądanie użytkownika. Te przypadki użycia pełnią rolę szkicu projektowego do projektowania i tworzenia systemów, które efektywnie spełniają potrzeby użytkowników. W tym artykule zajmiemy się procesem identyfikacji przypadków użycia, ich rozwojem za pomocą szablonów oraz modelowaniem za pomocą diagramów sekwencji. Identyfikacja potencjalnych przypadków użycia Zanim przejdziemy do procesu rozwoju i modelowania przypadków użycia, konieczne jest zidentyfikowanie potencjalnych przypadków użycia…continue reading →
Visual Paradigm Online: Twój ostateczny cel dla łatwego projektowania planów pięter

Visual Paradigm Online: Twój ostateczny cel dla łatwego projektowania planów pięter

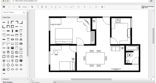
Wprowadzenie Projektowanie planu piętra jest nieodzowną częścią każdego projektu budowlanego lub remontowego, niezależnie od tego, czy chodzi o mały remont łazienki, czy dużą skalę projektu biurowego. Dokładność i przejrzystość planu piętra mogą mieć istotny wpływ na pomyślne zrealizowanie projektu. Wprowadźmy Visual Paradigm Online – platformę do wyboru dla łatwego w użyciu narzędzia do projektowania planów pięter online. Dzięki szerokiej gamie funkcji dostosowanych zarówno dla początkujących, jak i profesjonalistów, Visual Paradigm Online to jedno miejsce, które pozwala szybko i bezproblemowo tworzyć wysokiej jakości plany pięter. Tworzenie wspaniałych planów pięter jest łatwe Visual Paradigm Online…continue reading →
Poradnik wykresu rozproszenia: Szybki przewodnik

Poradnik wykresu rozproszenia: Szybki przewodnik

Wprowadzenie W dziedzinie analizy danych i wizualizacji wykresy rozproszenia są niezwykle cennymi narzędziami do odkrywania zależności między zmiennymi. W naszym konkretnym przypadku stworzyliśmy wykres rozproszenia, który bada fascynującą zależność między długością ramion a wzrostem wśród grupy uczniów klas jednastych. Ta wizualna prezentacja danych, składająca się z ośmiu indywidualnych punktów danych, pozwala nam zbadać dynamikę między tymi dwoma cechami. Analizując wzory na wykresie rozproszenia, możemy zacząć przewidywać długość ramion na podstawie wzrostu i wzrostu na podstawie długości ramion. Ta analiza nie tylko ujawnia cechy fizyczne tych uczniów, ale również pokazuje moc wykresów rozproszenia w…continue reading →
Zrozumienie diagramów kontekstu systemu w rozwoju oprogramowania: Kompletny przewodnik

Zrozumienie diagramów kontekstu systemu w rozwoju oprogramowania: Kompletny przewodnik

Wprowadzenie Zrozumienie diagramów kontekstu systemu w rozwoju oprogramowania: Kompletny przewodnik W złożonym świecie rozwoju oprogramowania kluczową rolę odgrywa skuteczna komunikacja. Bez jasnego zrozumienia zakresu systemu i jego relacji z zewnętrznymi jednostkami może nastąpić zamieszanie, prowadzące do nieporozumień, opóźnień i kosztownych błędów. Oto gdzie wchodzą w grę diagramy kontekstu systemu (SCD). SCD są podstawowym narzędziem do wizualizacji granic i interakcji systemu oprogramowania, pomagając zespołom skutecznie komunikować się i zapewniając, że wszyscy są na tej samej stronie. Co to jest diagram kontekstu systemu? Diagram kontekstu systemu to poziomowy, abstrakcyjny obraz interakcji systemu oprogramowania z jego…continue reading →
Visual Paradigm Online: Rysowanie diagramów lepiej, szybciej, razem

Visual Paradigm Online: Rysowanie diagramów lepiej, szybciej, razem

Wprowadzenie W sferze pracy zespołowej skuteczna komunikacja jest najważniejsza.Visual Paradigm Online (VP Online) pojawia się jako potężny sojusznik, upraszczając rysowanie diagramów dzięki solidnemu edytorowi i zcentralizowanemu środowisku pracy. Niezależnie od tego, czy jesteś web developerem, menedżerem marketingowym czy analitykiem biznesowym, VP Online oferuje elastyczne środowisko do tworzenia profesjonalnych diagramów z łatwością i wspierania bezproblemowej współpracy. Zacznij bezpłatnie, podnieś produktywność VP Online zaprasza Cię do użytkowania prostego interfejsu i bezpłatnego dostępu do użytkowania przez organizacje non-profit. Za zaledwie 9 dolarów miesięcznie na użytkownika użytkownicy komercyjni mają dostęp do skarbu intuicyjnych narzędzi do rysowania diagramów.…continue reading →
Odkrywanie mocy infografik: twórz lepsze projekty z łatwością

Odkrywanie mocy infografik: twórz lepsze projekty z łatwością

Wprowadzenie W dzisiejszym szybkim świecie, gdzie przeludnienie informacjami jest normą, komunikacja wizualna stała się ważniejsza niż kiedykolwiek. Infografiki, łączące tekst i obrazy, wyrosły na potężne narzędzia do przekazywania skomplikowanych informacji w sposób zwięzły i angażujący. Niezależnie od tego, czy chcesz przedstawić dane, wyjaśnić proces, czy po prostu zwrócić uwagę, infografiki mogą stać się twoim sekretnym narzędziem. Dzięki odpowiednim narzędziom i technikom tworzenie wspaniałych infografik nie jest już wyłącznie domeną grafików — może to zrobić każdy. Znaczenie infografik Infografiki są uniwersalnymi narzędziami komunikacji, które potrafią przekształcać banalne dane w fascynujące wizualizacje. Od broszur i…continue reading →
Odkrywanie kreatywności za pomocą Visual Paradigm Online: rozpocznij tworzenie highly personalizowanych infografik

Odkrywanie kreatywności za pomocą Visual Paradigm Online: rozpocznij tworzenie highly personalizowanych infografik

  Wprowadzenie W szybkociągłym erze cyfrowym informacje są przyswajane w niezwykłym tempie. Aby zwrócić uwagę i skutecznie przekazać złożone koncepcje, kluczowe jest komunikowanie wizualne.Visual Paradigm Online, nowoczesny narzędzie do tworzenia diagramów i projektowania, pozwala użytkownikom rozpocząć kreatywność dzięki obszernemu zbiorowi szablonów. W tym artykule omawiamy, jak wykorzystać to narzędzie do tworzenia highly personalizowanych i skutecznychinfografik. Rozdział 1: Rozpoczęcie pracy z Visual Paradigm Online 1.1 Rejestracja i interfejs Rozpocznij swoją kreatywną podróż, zarejestruj się w Visual Paradigm Online. Intuicyjny interfejs przyjmuje użytkowników przyjaznym pulpitem, co ułatwia nawigację. 1.2 Przeglądaj bibliotekę szablonów Odkryj swój potencjał…continue reading →
Uproszczenie projektowania graficznego i tworzenia infografik za pomocą profesjonalnych szablonów Visual Paradigm

Uproszczenie projektowania graficznego i tworzenia infografik za pomocą profesjonalnych szablonów Visual Paradigm

Wprowadzenie: W dynamicznym świecie komunikacji cyfrowej treści wizualne stały się niezwykle istotnym narzędziem do skutecznego przekazywania informacji. Projektowanie graficzne i infografiki odgrywają kluczową rolę w przedstawianiu skomplikowanych danych i idei w sposób wizualnie atrakcyjny. Jednak proces tworzenia angażujących wizualizacji może być czasochłonny i trudny dla osób bez tła graficznego. Na szczęście narzędzia takie jakgraficzny twórca Visual Paradigm oferują rozwiązanie poprzez zapewnienie profesjonalnych szablonów i przyjaznych użytkownikowi funkcji, które upraszczają proces projektowania. Odkrywanie mocyProfesjonalnych szablonów: 1. Efektywność czasowa: Jedną z najważniejszych zalet korzystania z graficznego twórca Visual Paradigm jest dostępność profesjonalnie zaprojektowanych szablonów. Te…continue reading →
Odkrywanie kreatywności i współpracy za pomocą narzędzia do tworzenia diagramów online Visual Paradigm

Odkrywanie kreatywności i współpracy za pomocą narzędzia do tworzenia diagramów online Visual Paradigm

Wprowadzenie W szybkim świecie pracy zespołowej potrzeba efektywnych i wszechstronnych narzędzi do tworzenia diagramów online nigdy nie była większa. Visual Paradigm Online pojawia się jako potężne rozwiązanie, przekształcając obszar tworzenia diagramów dzięki swojej platformie opartej na chmurze i wspierającej współpracę. Przyjrzyjmy się funkcjom i zaletom, które wyróżniają Visual Paradigm Online wśród innych narzędzi do tworzenia diagramów online. Zacznij w dowolnym czasie i w dowolnym miejscu Visual Paradigm Online pozwala Ci bezproblemowo rysować diagramy, niszcząc bariery czasu i przestrzeni. Niezależnie od tego, czy jesteś w biurze, w domu czy w drodze, chmurowa natura narzędzia…continue reading →
Otwieranie produktywności za pomocą Online Productivity Suite Visual Paradigm

Otwieranie produktywności za pomocą Online Productivity Suite Visual Paradigm

Wprowadzenie W szybkociągłym erze cyfrowej produktywność to klucz do sukcesu. Online Productivity Suite Visual Paradigm pojawia się jako przełom, oferując kompleksowy zestaw narzędzi do ułatwienia pracy i zwiększenia wydajności. Spójrzmy na cechy, które sprawiają, że ten zestaw jest potężnym narzędziem dla osób prywatnych, firm i instytucji edukacyjnych. Kompletny zestaw biurowy Visual Paradigm oferuje kompletny online zestaw biurowy, który bezproblemowo integruje się z Twoim przepływem pracy. Od szybkich demonstracji po edycję dokumentów, tworzenie prezentacji, edycję arkuszy kalkulacyjnych i nawet przeglądarkę PDF, zestaw obejmuje wszystkie aspekty potrzeb biurowych. Usuwa to kłopot z przełączaniem się między…continue reading →