Hiểu về sơ đồ Chuỗi quy trình điều khiển bởi sự kiện (EPC): Hướng dẫn toàn diện

Hiểu về sơ đồ Chuỗi quy trình điều khiển bởi sự kiện (EPC): Hướng dẫn toàn diện

Giới thiệu Trong lĩnh vực mô hình hóa và phân tích quy trình kinh doanh, các sơ đồ Chuỗi quy trình điều khiển bởi sự kiện, hay sơ đồ EPC, là những công cụ quý giá để mô tả và tối ưu hóa các luồng công việc. Được phát triển bởi Giáo sư Scheer và các cộng sự tại Saarland vào năm 1992, các sơ đồ này đã được sử dụng rộng rãi trong nhiều ngành công nghiệp, mang lại một cách tiếp cận có cấu trúc để ghi lại và trực quan…continue reading →
Bật mí sức mạnh của các trường hợp sử dụng: Từ xác định đến mô hình hóa

Bật mí sức mạnh của các trường hợp sử dụng: Từ xác định đến mô hình hóa

Giới thiệu Trong lĩnh vực phát triển phần mềm và phân tích hệ thống, một trong những bước then chốt để tạo ra các ứng dụng thành công là xác định và mô hình hóa các trường hợp sử dụng. Một trường hợp sử dụng về cơ bản là mô tả cách một hệ thống hoặc ứng dụng phản ứng trước một yêu cầu cụ thể từ người dùng. Các trường hợp sử dụng này đóng vai trò như bản vẽ kỹ thuật để thiết kế và phát triển các hệ thống đáp…continue reading →
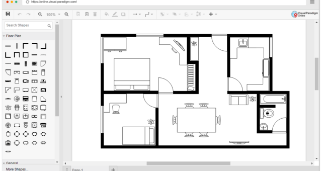
Visual Paradigm Online: Điểm đến lý tưởng của bạn cho thiết kế bản vẽ mặt bằng dễ dàng

Visual Paradigm Online: Điểm đến lý tưởng của bạn cho thiết kế bản vẽ mặt bằng dễ dàng

Giới thiệu Việc thiết kế bản vẽ mặt bằng là một phần thiết yếu trong mọi dự án xây dựng hoặc cải tạo, dù là việc cải tạo một phòng tắm nhỏ hay thiết kế văn phòng quy mô lớn. Độ chính xác và rõ ràng của bản vẽ mặt bằng có thể tạo ra sự khác biệt đáng kể trong việc thực hiện thành công dự án của bạn. Hãy đến với Visual Paradigm Online, nền tảng hàng đầu cho công cụ thiết kế bản vẽ mặt bằng trực tuyến dễ sử…continue reading →
Hướng dẫn về biểu đồ phân tán: Hướng dẫn nhanh

Hướng dẫn về biểu đồ phân tán: Hướng dẫn nhanh

Giới thiệu Trong lĩnh vực phân tích và trực quan hóa dữ liệu, biểu đồ phân tán đóng vai trò là công cụ quý giá để phát hiện mối quan hệ giữa các biến số. Trong trường hợp cụ thể này, chúng tôi đã tạo ra một biểu đồ phân tán để khám phá mối liên hệ thú vị giữa chiều dài cánh tay và chiều cao ở một nhóm học sinh lớp 11. Biểu đồ trực quan này, gồm tám điểm dữ liệu riêng lẻ, giúp chúng ta nghiên cứu sâu hơn…continue reading →
Hiểu về Sơ đồ Bối cảnh Hệ thống trong Phát triển Phần mềm: Hướng dẫn Toàn diện

Hiểu về Sơ đồ Bối cảnh Hệ thống trong Phát triển Phần mềm: Hướng dẫn Toàn diện

Giới thiệu Hiểu về Sơ đồ Bối cảnh Hệ thống trong Phát triển Phần mềm: Hướng dẫn Toàn diện Trong thế giới phức tạp của phát triển phần mềm, giao tiếp hiệu quả là chìa khóa. Nếu không hiểu rõ phạm vi hệ thống và các mối quan hệ của nó với các thực thể bên ngoài, sự hỗn loạn có thể xảy ra, dẫn đến hiểu lầm, trì hoãn và những sai sót tốn kém. Đây chính là lúc sơ đồ bối cảnh hệ thống (SCDs) phát huy vai trò. SCDs đóng…continue reading →
Visual Paradigm Online: Vẽ sơ đồ tốt hơn, nhanh hơn, cùng nhau

Visual Paradigm Online: Vẽ sơ đồ tốt hơn, nhanh hơn, cùng nhau

Giới thiệu Trong lĩnh vực làm việc nhóm, giao tiếp hiệu quả là điều tối quan trọng.Visual Paradigm Online (VP Online) nổi lên như một người bạn đồng hành mạnh mẽ, đơn giản hóa việc vẽ sơ đồ thông qua trình soạn thảo mạnh mẽ và không gian làm việc tập trung. Dù bạn là nhà phát triển web, quản lý tiếp thị hay chuyên gia phân tích kinh doanh, VP Online cung cấp nền tảng linh hoạt để tạo các sơ đồ chuyên nghiệp một cách dễ dàng và thúc đẩy sự…continue reading →
Giải phóng sức mạnh của sơ đồ thông tin: Tạo ra các thiết kế tuyệt vời một cách dễ dàng

Giải phóng sức mạnh của sơ đồ thông tin: Tạo ra các thiết kế tuyệt vời một cách dễ dàng

Giới thiệu Trong thế giới hiện đại với nhịp độ nhanh, nơi quá tải thông tin đã trở thành điều bình thường, giao tiếp hình ảnh đã trở nên quan trọng hơn bao giờ hết. Sơ đồ thông tin, với sự kết hợp giữa văn bản và hình ảnh, đã xuất hiện như những công cụ mạnh mẽ để truyền tải thông tin phức tạp một cách ngắn gọn và hấp dẫn. Dù bạn muốn minh họa dữ liệu, giải thích một quy trình hay đơn giản là thu hút sự chú ý,…continue reading →
Giải phóng sáng tạo với Visual Paradigm Online: Bắt đầu ngay với các infographic cá nhân hóa cao

Giải phóng sáng tạo với Visual Paradigm Online: Bắt đầu ngay với các infographic cá nhân hóa cao

  Giới thiệu Trong thời đại kỹ thuật số nhanh chóng, thông tin được tiêu thụ ở mức chưa từng có. Để thu hút sự chú ý và truyền tải các khái niệm phức tạp một cách hiệu quả, giao tiếp hình ảnh là chìa khóa.Visual Paradigm Onlinee, một công cụ vẽ sơ đồ và thiết kế tiên tiến, giúp người dùng khởi động sáng tạo của mình thông qua một bộ sưu tập mẫu khổng lồ. Trong bài viết này, chúng tôi khám phá cách tận dụng công cụ này để tạo…continue reading →
Tối ưu hóa thiết kế đồ họa và tạo infographic với các mẫu chuyên nghiệp của Visual Paradigm

Tối ưu hóa thiết kế đồ họa và tạo infographic với các mẫu chuyên nghiệp của Visual Paradigm

Giới thiệu: Trong thế giới năng động của truyền thông kỹ thuật số, nội dung hình ảnh đã trở thành công cụ không thể thiếu để truyền đạt thông tin một cách hiệu quả. Thiết kế đồ họa và infographic đóng vai trò then chốt trong việc trình bày dữ liệu và ý tưởng phức tạp một cách hấp dẫn về mặt thị giác. Tuy nhiên, quá trình tạo ra các hình ảnh thu hút có thể tốn nhiều thời gian và khó khăn đối với những người không có nền tảng thiết…continue reading →
Giải phóng sáng tạo và hợp tác với công cụ vẽ sơ đồ trực tuyến Visual Paradigm

Giải phóng sáng tạo và hợp tác với công cụ vẽ sơ đồ trực tuyến Visual Paradigm

Giới thiệu Trong thế giới làm việc hợp tác nhanh chóng, nhu cầu về các công cụ vẽ sơ đồ trực tuyến hiệu quả và linh hoạt chưa bao giờ cấp thiết như hiện nay. Visual Paradigm Online xuất hiện như một giải pháp mạnh mẽ, định hình lại lĩnh vực tạo sơ đồ nhờ nền tảng đám mây và hợp tác. Hãy cùng khám phá những tính năng và lợi ích nổi bật giúp Visual Paradigm Online vượt trội trong lĩnh vực vẽ sơ đồ trực tuyến. Bắt đầu bất cứ lúc…continue reading →